Dom Bez Kosztów | Z136 D - Dom Bez Kosztów
X
Zostaw swoje dane

Aby pobrać ofertę na Z136 D wpisz swój adres email oraz numer telefonu, a my skontaktujemy się z Tobą w celu przedstawienia indywidualnej oferty.

Akceptuję politykę prywatności i wyrażam zgodę na przetwarzanie danych osobowych przez Dom Bez Kosztów sp. z o.o. w celu przedstawienia oferty.

Z136 D

  • Powierzchnia użytkowa:
    76,38 m2
  • Powierzchnia zabudowy:
    95,05 m2
  • Min. wymiary działki:
    20,32 x 16,42 m
  • Powierzchnia podłóg:
    78,78 m2
  • Kubatura:
    217,41 m3
  • Kąt nachylenia dachu:
    25°

Chcesz poznać szczegółową ofertę?

Zapytaj o cenę
Informacje

Opis domu

Z136 D to propozycja dla osób szukających niewielkiego i funkcjonalnego domu parterowego. Naturalne, drewniane okładziny elewacji świetnie komponują się z popielatą blachodachówką i dodają mu uroku. Podcień wejściowy zaakcentowany jest wysuniętym zadaszeniem wspartym na drewnianych słupach.

Do części ogrodowej prowadzą duże drzwi balkonowe. Strefa dzienna to komfortowy, przestronny salon subtelnie oddzielony od jadalni oraz kuchni. W przejściu znajduje się kominek, który zapewni ciepło w całym domu. Do kuchni przynależy pomieszczenie gospodarcze, które może pełnić funkcję spiżarni. W prawym skrzydle budynku zaprojektowano 2 sypialnie. Każda posiada wydzielone miejsce na sporą szafę. Pomiędzy pokojami mieści się wygodna łazienka. Niewielkie okno pozwala na naturalne doświetlenie pomieszczenia. Dużą zaletą tego projektu jest widna garderoba dostępna bezpośrednio z sieni.

Projekt Z136 D spodoba się wszystkim zwolennikom pomieszczeń na jednym poziomie.

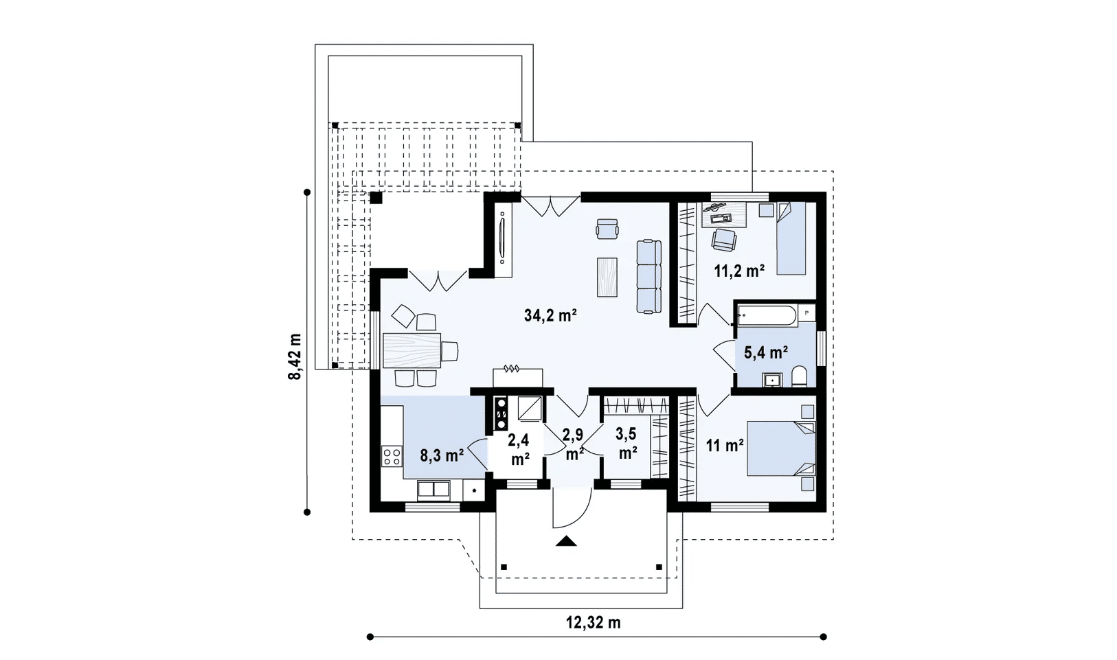
Rzut: Parter

  1. Przedsionek
    2.91 m2
  2. Kuchnia
    8.26 m2
  3. Pokój dzienny + jadalnia
    34.23 m2
  4. Pokój
    11.17 m2
  5. Łazienka
    5.35 m2
  6. Pokój
    11.00 m2
  7. Garderoba
    3.46 m2
  8. Pomieszczdenie gospodarcze
    2.40 m2
Oferta

Pobierz kartę katalogową

Aby zapoznać się ze szczegółowymi informacjami na temat projektu, pobierz kartę katalogową. Znajdziesz w niej projekt, cenę oraz zakres prac budowy domu w trzech technologiach. Wystarczy, że podasz swój adres e-mail i numer telefonu, a specjalista Domu bez Kosztów skontaktuje się z Tobą i odpowie na wszystkie Twoje pytania!

Oferta domów

Sprawdź podobne projekty

Zobacz wszystkie
+48 728 851 023